- Woonoppervlakte
- Circa 118 m²
- Perceeloppervlakte
- Circa 269 m²
- Bouwjaar
- Gebouwd in 1985
- Aantal kamers
- 5 kamers (4 slaapkamers)
Trommelaarshoeve 4 – Apeldoorn
Ruime hoekwoning met serre, vier slaapkamers en parkeren op eigen terrein
In de geliefde wijk De Maten staat deze ruime hoekwoning met energielabel B, vier slaapkamers, een grote serre en parkeren op eigen terrein. De woning ligt op een rustige en kindvriendelijke locatie, op korte afstand van winkelcentrum De Eglantier, het Matenpark, scholen en openbaar vervoer.
Indeling
Begane grond:
Entree, hal met meterkast, toilet en trapopgang. De lichte en ruime woonkamer heeft grote ramen en biedt een prettig uitzicht op de tuin. Aan de achterzijde bevindt zich de royale serre, die zorgt voor extra leefruimte en in directe verbinding staat met de achtertuin. De open keuken is praktisch ingedeeld en voorzien van voldoende kastruimte.
Eerste verdieping:
Overloop met toegang tot drie goed bemeten slaapkamers en de badkamer.
Tweede verdieping:
Via een vaste trap bereikbare zolderverdieping met een vierde slaapkamer en extra bergruimte.
Buiten
De woning beschikt over een verzorgde achtertuin met achterom en een ruime serre waar je het hele jaar door van het buitenleven kunt genieten. Aan de voorzijde is er parkeergelegenheid op eigen terrein.
Locatie
De Trommelaarshoeve ligt in een rustige straat in de populaire wijk De Maten. Op loopafstand vind je winkelcentrum De Eglantier met een compleet aanbod aan winkels en voorzieningen. Ook het Matenpark, basisscholen, sportverenigingen en openbaar vervoer liggen in de directe omgeving. De uitvalswegen zijn snel en eenvoudig bereikbaar.
Bijzonderheden
Hoekwoning met veel privacy
Parkeren op eigen terrein
Grote serre aan de achterzijde
Vier slaapkamers
Ruime woonkamer met veel licht
Achtertuin met achterom
Energielabel B
Gelegen nabij winkelcentrum De Eglantier en het Matenpark
Kortom:
Een complete en goed onderhouden hoekwoning op een fijne locatie met alle voorzieningen binnen handbereik. Kom kijken en ervaar zelf de ruimte en het wooncomfort dat deze woning te bieden heeft! Lees de volledige omschrijving
Overdracht
- Vraagprijs
- € 425.000 k.k.
- Status
- Onder bod
- Aanvaarding
- In overleg
Bouw
- Object type
- Eengezinswoning, hoekwoning
- Soort bouw
- Bestaande bouw
- Bouwjaar
- 1985
- Soort dak
- Zadeldak bedekt met pannen
Oppervlakte en inhoud
- Woonoppervlakte
- 118 m²
- Perceeloppervlakte
- 269 m²
- Inhoud
- 439 m³
- Externe bergruimte
- 5 m²
Indeling
- Aantal kamers
- 5 kamers (4 slaapkamers)
- Aantal badkamers
- 1 badkamer
- Badkamervoorzieningen
- Douche, inloopdouche, ligbad, toilet, en wastafel
- Aantal woonlagen
- 2 woonlagen en een zolder
- Voorzieningen
- Dakraam, glasvezelkabel, natuurlijke ventilatie, en schuifpui
Energie
- Energielabel
- B
- Energielabel registratie
- 07-08-2025
- Isolatie
- Grotendeels dubbelglas
- Verwarming
- Cv-ketel
- Warm water
- Cv-ketel
- Cv ketel
- Remeha (gas gestookt uit 2022, eigendom)
Buitenruimte
- Ligging
- In woonwijk en vrij uitzicht
- Tuin
- Achtertuin en voortuin
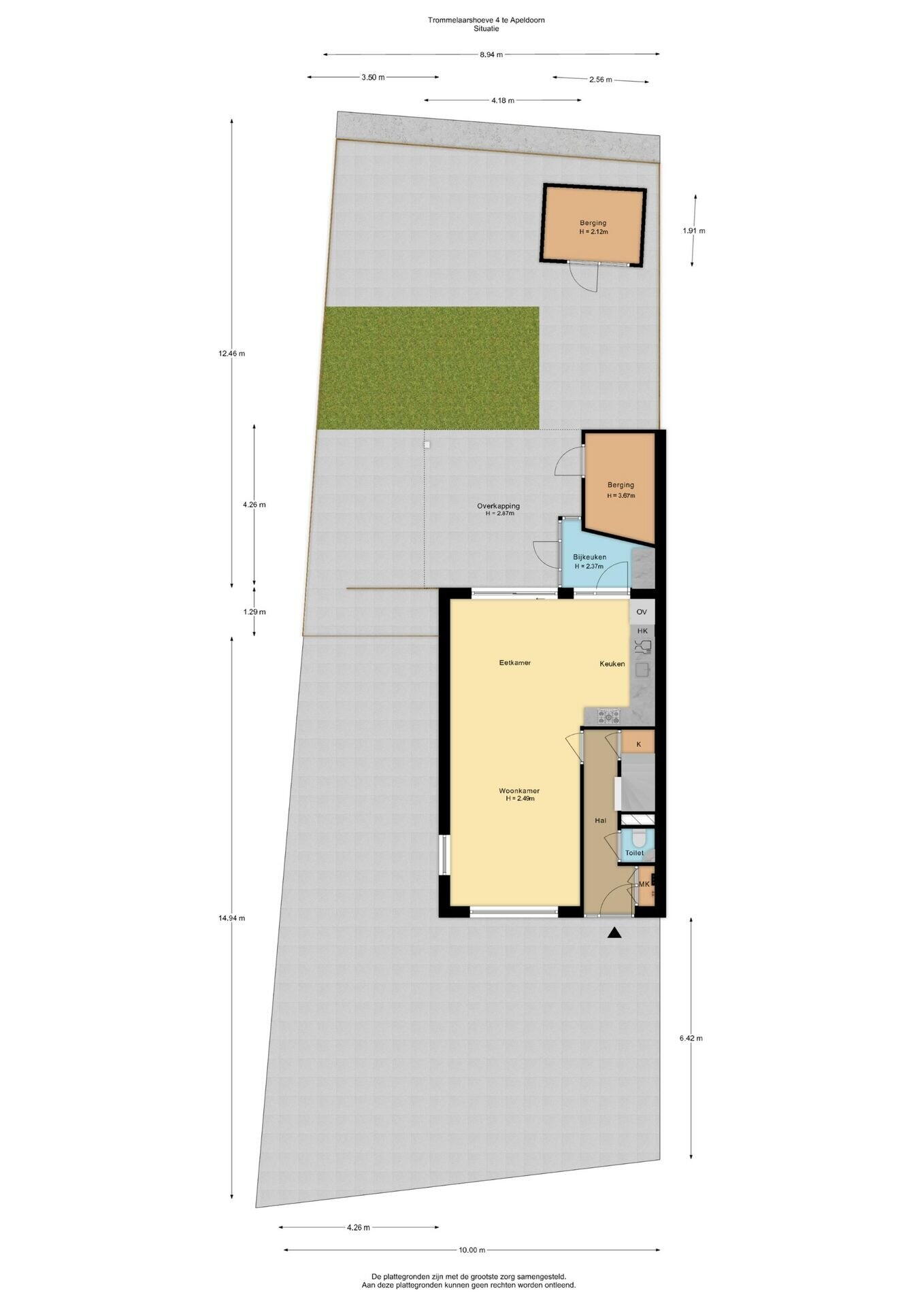
- Afmetingen achtertuin
- 111 m² (12,46 meter diep en 8,94 meter breed)
- ligging tuin
- Gelegen op het zuidoosten bereikbaar via achterom
Bergruimte
- Schuur / berging
- Aangebouwde stenen berging
- Voorzieningen
- Elektra en stromend water
Parkeergelegenheid
- Soort parkeergelegenheid
- Op eigen terrein en openbaar parkeren
Energieverbruik in Apeldoorn
Energielabel deze woning
Energielabel B
Publicatie energielabel: 07-08-2025
Stroomverbruik per jaar
(Gemiddelde hoekwoning in Apeldoorn)
Gasverbruik per jaar
(Gemiddelde hoekwoning in Apeldoorn)
* Cijfers zijn afkomstig van het CBS en bedoeld als indicatie en kunnen verschillen voor deze woning
Indicatie hypotheeklasten
Eigen inleg:
Spaargeld / overwaarde
Rente:
Laagste 10-jaars rente
Laagste 10-jaars rente
2,78% - Centraal Beheer Groen... - NHG
3,04% - Centraal Beheer Groen... - 80%
Laagste 20-jaars rente
3,29% - Centraal Beheer Groen... - NHG
3,52% - Centraal Beheer Groen... - 80%
Laagste 30-jaars rente
3,41% - Centraal Beheer Groen... - NHG
3,7% - Argenta Groen Hypotheek... - 80%
Hypotheek:
Bruto maandlasten: € 0 p/m
Netto maandlasten: € 0 p/m
Hoe berekenen we dit?
Het rentepercentage is gebaseerd op de laagste 10 jaars vaste rente voor één hypotheekdeel. De vermelde rente (3.04% zonder NHG) is gecontroleerd op 27-02-2026. Deze berekening is gebaseerd op een annuïteitenhypotheek die volledig wordt afgelost, waarbij de maandlasten gedurende de gehele looptijd gelijk blijven. De werkelijke rente en netto maandlasten kunnen variëren, afhankelijk van uw persoonlijke situatie en de hypotheekverstrekker. Raadpleeg een financieel adviseur voor een nauwkeurige berekening en advies. Aan deze berekening kunnen geen rechten worden ontleend; het dient enkel als indicatie.
Documentatie
Kadastrale kaart
Leefomgeving
Plattegronden PDF
WOZ waarderapport
BAG uittreksel
Brochure
Vragenlijstb-5146
128807635-7326vp-4
Bezoek onze website
Bezichtiging
Bod uitbrengen
Waardebepaling
Zoekopdracht
Alles downloaden
Zonnegrenzen bekijken
Op de kaart
Inwoners in Apeldoorn
Cijfers voor postcodegebied 7326
- Totaal aantal inwoners
- 9890 inwoners
- Mannen
- 49%
- Vrouwen
- 51%
Inwoners in Apeldoorn
Cijfers voor postcodegebied 7326
- tot 15 jaar
- 18%
- 15 tot 25 jaar
- 10%
- 25 tot 35 jaar
- 23%
- 45 tot 65 jaar
- 27%
- 65 en ouder
- 22%
Huishoudens in Apeldoorn
Cijfers voor postcodegebied 7326
- Eenpersoons zonder kinderen
- 26%
- Meerpersoons zonder kinderen
- 35%
- Huishoudens zonder kinderen
- 61%
Huishoudens in Apeldoorn
Cijfers voor postcodegebied 7326
- Huishoudens met één kind
- 8%
- Huishoudens met meerdere kinderen
- 30%
- Huishoudens met kinderen
- 38%
Woningen in Apeldoorn
Cijfers voor postcodegebied 7326
- Woningen voor 1945
- 1%
- Woningen tussen 1945 en 1965
- 1%
- Woningen tussen 1965 en 1975
- 20%
- Woningen tussen 1975 en 1985
- 65%
- Woningen tussen 1985 en 1995
- 14%
Woningen in Apeldoorn
Cijfers voor postcodegebied 7326
- Woningen tussen 1995 en 2005
- 1%
- Woningen tussen 2005 en 2015
- 1%
- Woningen na 2015
- 1%
- Huurwoningen
- 40%
- Koopwoningen
- 60%
Overige in Apeldoorn
Cijfers voor postcodegebied 7326
- Gemiddelde WOZ waarde
- € 205.000,-
- Personen onder de 65 met uitkering
- 8%
Overige in Apeldoorn
Cijfers voor postcodegebied 7326
- Adressen per km²
- 1669
- Stedelijkheid (schaal 1 op 5)
- 80%
Indien u vragen heeft of u wilt een bezichtiging inplannen, dan kunt u gebruik maken van het formulier hiernaast. Er zal daarna op korte termijn contact met u worden opgenomen.
De Eglantier 404
7329 DL, Apeldoorn
055 202 00 10 apeldoorn@wittewoningmakelaars.nl www.wittewoningmakelaars.nlContact opnemen
WitteWoning makelaars Apeldoorn
Uw woning verkopen kan natuurlijk bij iedere willekeurige makelaar, waarom dan toch kiezen voor WitteWoning Makelaars.
WITTEWONING MAKELAARS BIEDT U BIJ ALLE DIENSTVERLENING ALTIJD DE BESTE SERVICE VOOR DE SCHERPSTE PRIJS VAN NEDERLAND
Hierbij regelen wij het gehele traject van A tot Z. Van opname van de woning tot sleutel overdracht. Alles wordt geregeld, en u wordt hierbij zoveel mogelijk ontlast of begeleid.
Wilt u zelf ook uw steentje bijdragen, door bijvoorbeeld zelf de bezichtigingen met aspirant kopers te verzorgen, dan kunnen we een lagere courtage bij verkoop met u overeenkomen*
Vanzelfsprekend komt u woning niet alleen op onze website te staan, maar ook wordt deze volledig geplaatst op Funda, onze eigen website en een aantal andere sites. Verder zijn er nog veel websites die ons aanbod spyderen waardoor uw woning terug te vinden is op een groot aantal websites. Hiermee heeft u dus een bereik van een miljoenen publiek voor uw te koop staande woning.
* Vraag bij uw lokale vestiging naar de mogelijkheden
Nieuwste reviews
-
Robin Sikkema
Ons eerste huis kopen was natuurlijk best spannend, maar met Piet aan onze zijde konden we dat gevoel al snel loslaten. Hij is altijd vriend...
-
Daly Dhifalli
wij zijn ontzettend tevreden over onze samenwerking met piet van wittewoning. hij heeft ons geholpen met de verkoop van ons huis en de hele...
-
Dominique Dhifalli
Top geholpen door de snelle en professionele hulp van Piet. Huis was binnen 4 dagen verkocht. Hij was behulpzaam, dacht altijd mee en zorgde...